Puhurintie 11, 28370 Pori

Vesimaksu Lämmitys: kaukolämmitys, sisältyy vuokraan Vuokravakuus: 700 € Rakennettu: 1980, peruskorjausvuosi 2000 Muut korjaukset: keittiöt remontoitu 2005 DNA Netin perusnopeus 25 Mbit/s sisältyy vuokraasi. Ota netti käyttöön DNA Kaupassa tai netissä dna.fi/porinyh DNA kaapeli-tv Lasitetut parvekkeet Pesutuvan käyttö sisältyy vuokraan Mahdollisuus saunavuoroon ja autopaikkaan. Sisälämmitinpaikka 14 €/kk, autopaikka 10 €/kk. Kotivakuutus vastuuvakuutuksella pyydetään. Uusissa vuokrasopimuksissa tupakointi on kielletty asunnoissa, parvekkeilla, luhtikäytävillä, huoneistopihoilla, terasseilla ja talon yhteisissä tiloissa.
- Type of housing
Rental apartments - Property type
Apartment building - Neighborhood
Sampola - Built
1980 - Apartments
35
General information
- Rent
- 401 - 713 € /month
- Water
- Not included in rent
- Heating
- District heating
- Common areas
- Pesutupa, Sauna, Ulkoiluvälinevarasto
Apartments
One-room
1h+kk+p32 m27 pcAvailable 0
Two-room
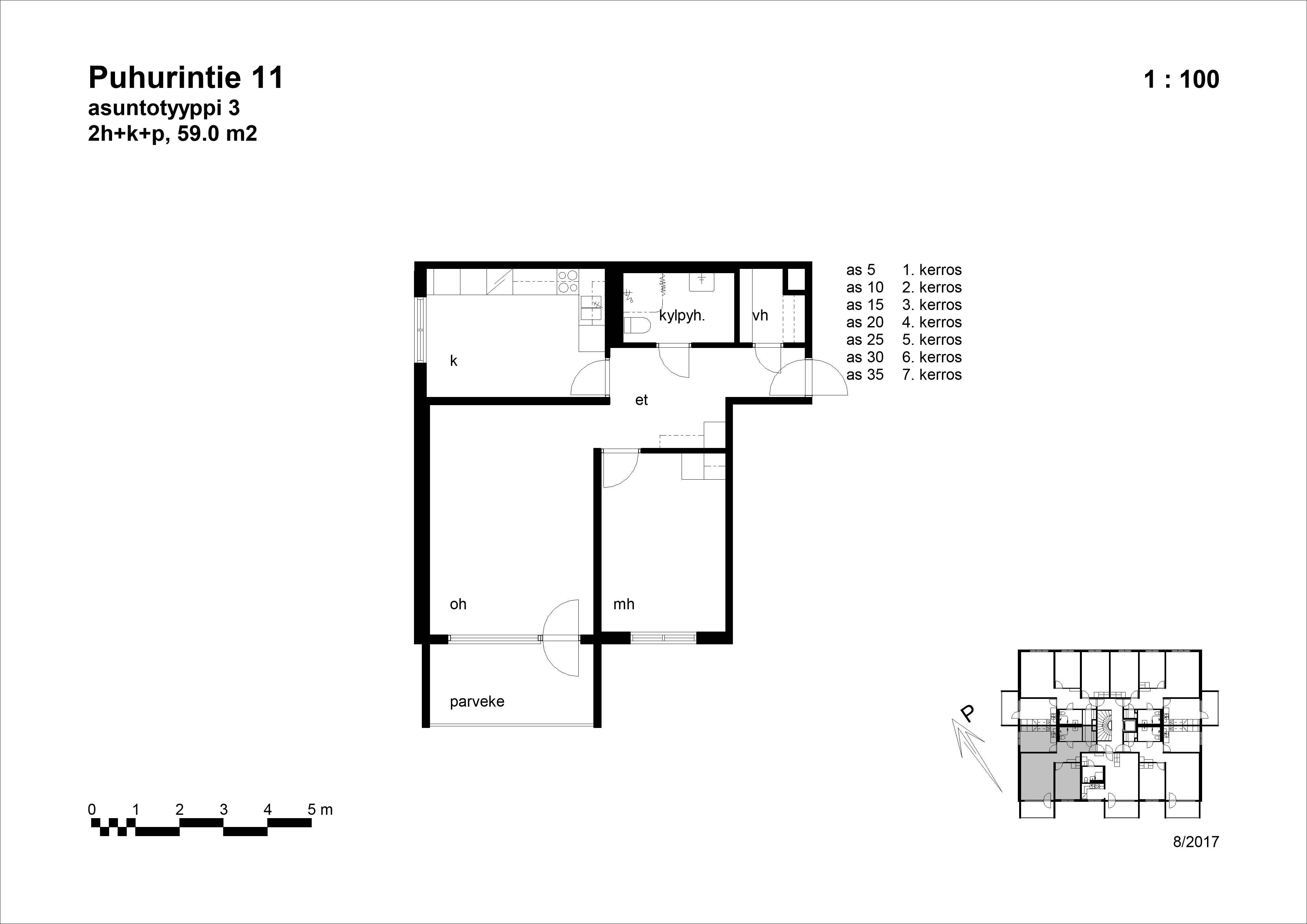
2h+k+vh+p59 m27 pcAvailable 1
| AS 35 | 597 €/kk | Available | Floorplan |
2h+k+vh+p58 m27 pcAvailable 0
Three-room
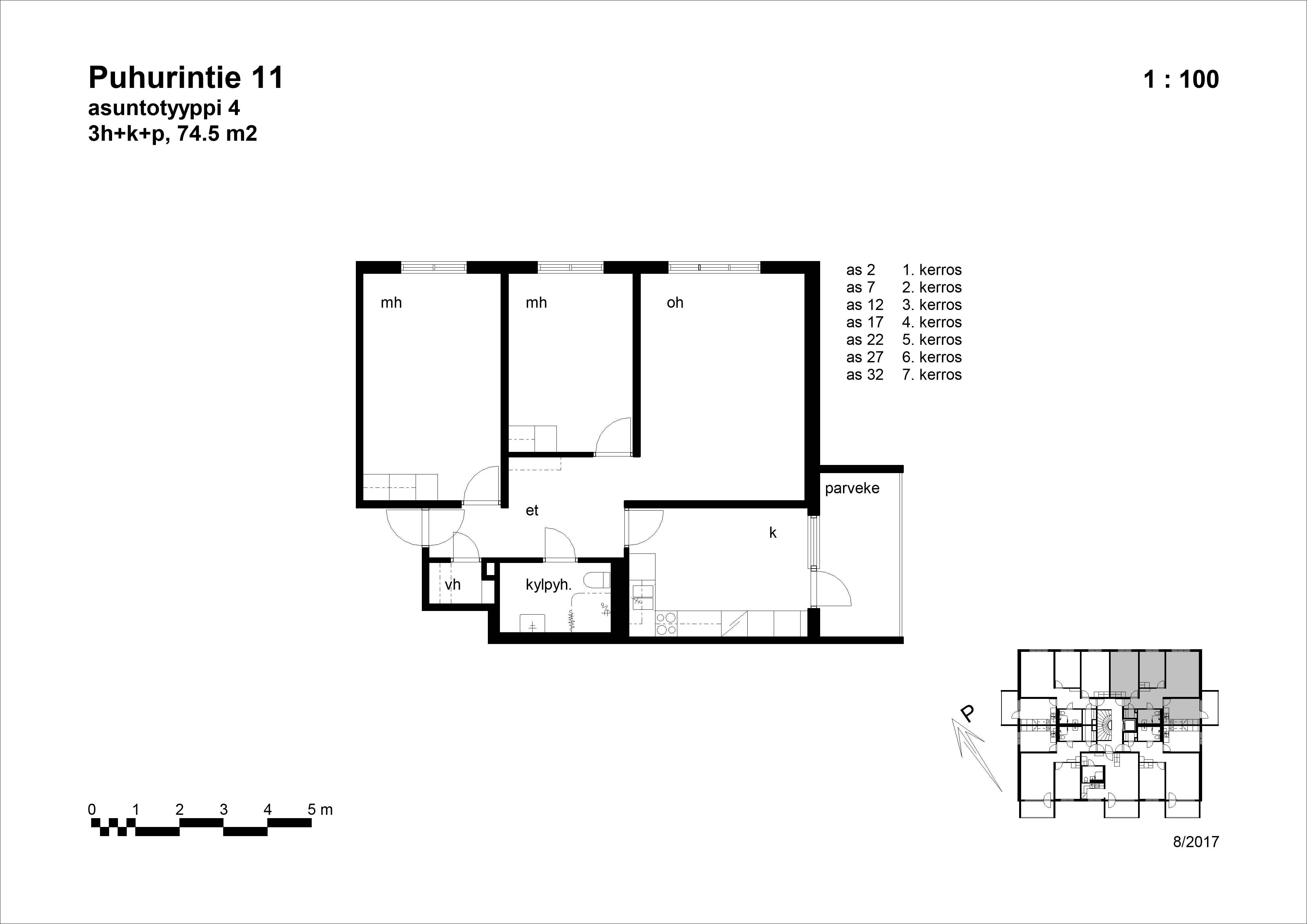
3h+k+vh+p74.5 m27 pcAvailable 0
3h+k+vh+p75.5 m27 pcAvailable 0
