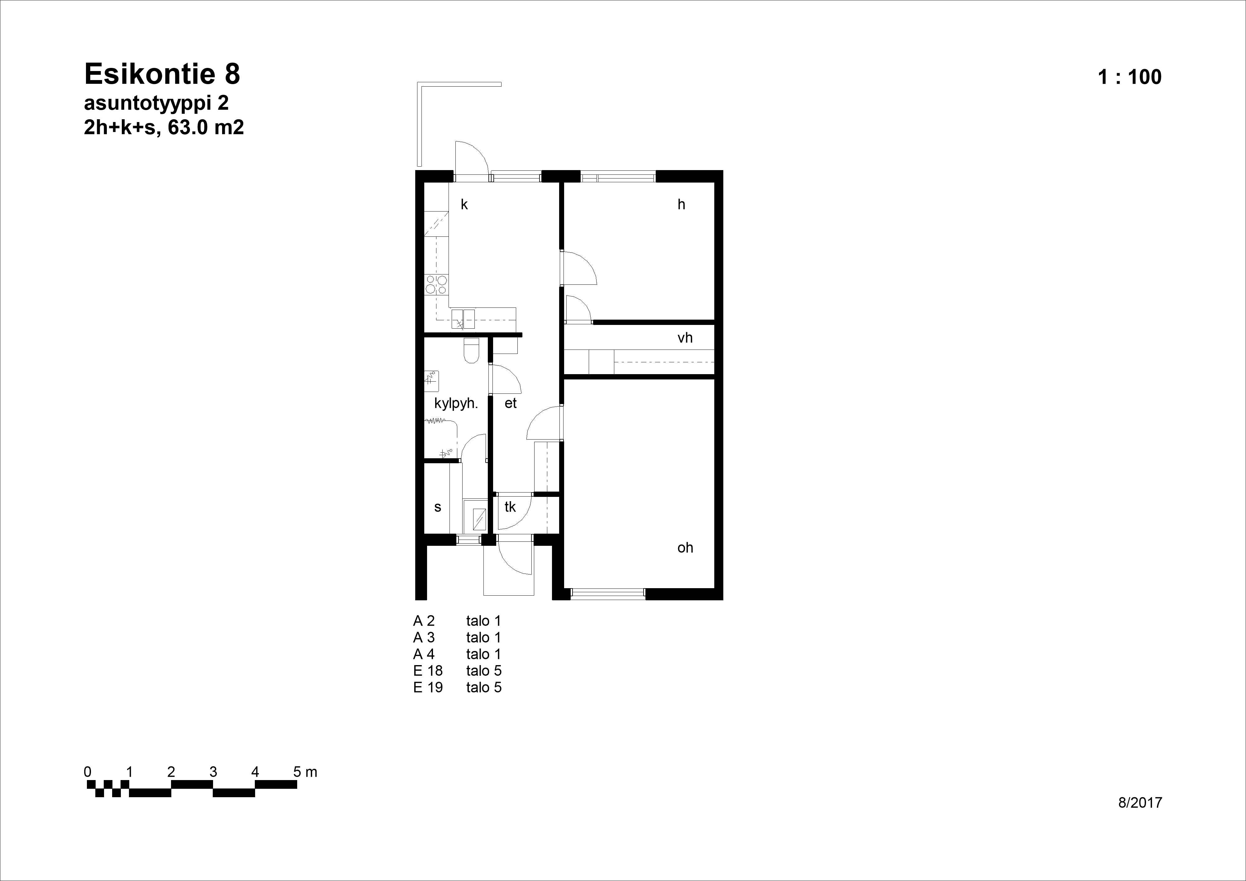
Esikontie 8, 28660 Pori

Vesiennakko; laskutus mittarin mukaan. Lämmitys: kaukolämmitys, sisältyy vuokraan Vuokravakuus: 700 € Rakennettu: 1991, peruskorjausvuosi 2001-2004 (asuinrakennusten salaojien uusiminen) Autokatospaikka sisältyy vuokraan. Kotivakuutus vastuuvakuutuksella pyydetään. Uusissa vuokrasopimuksissa tupakointi on kielletty asunnoissa, parvekkeilla, luhtikäytävillä, huoneistopihoilla, terasseilla ja talon yhteisissä tiloissa. DNA toimittaa netti- ja kaapeli-tv -palvelut Porin YH-asuntojen koteihin. DNA Netin perusnopeus 25 Mbit/s sisältyy vuokraasi. Ota DNA Netti käyttöön, katso ohjeet ja hinnat https://www.dna.fi/porinyh
- Type of housing
Rental apartments - Property type
Row house - Neighborhood
Länsi-Pori - Built
1991 - Apartments
20
General information
- Rent
- 593 - 944 € /month
- Water
- Not included in rent
- Heating
- District heating
- Common areas
- Ulkoiluvälinevarasto
Apartments
